Votre satisfaction est ma priorité
Stéphanie FORTIN votre conseilllère en immobilier à Legé
et ses alentours

44650 Legé
Maison 4 pièces 98m2 - Réf 74_SFN-0025659

136 240 €
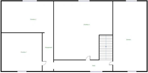
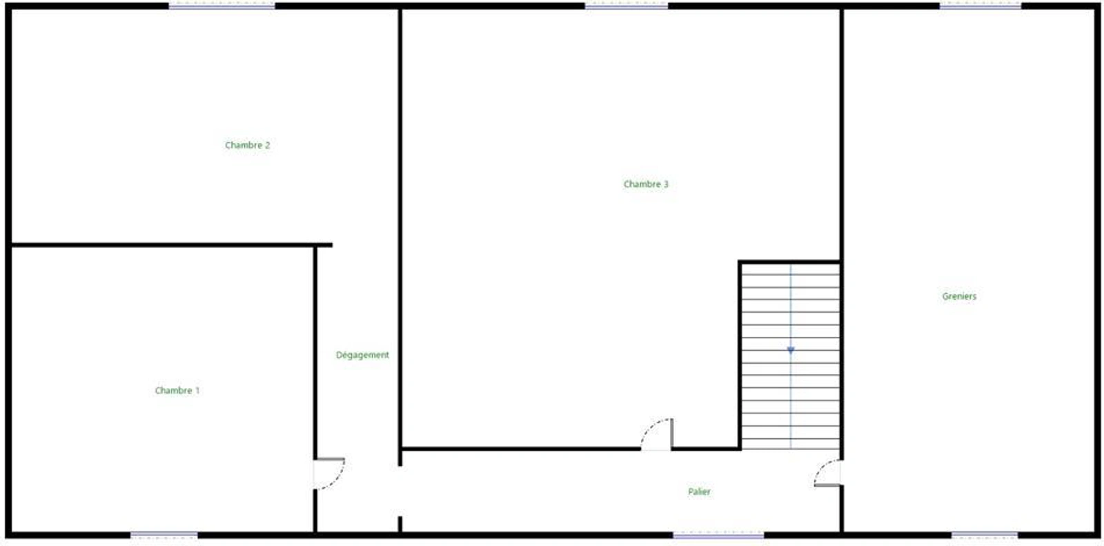
Votre conseillère Stéphanie Fortin Noovimo, vous propose: En plein centre de Legé, cette maison en pierre de 98m2, à rénover entièrement, offrant de belles possibilités d'aménagement. Elle se compose au rez-de-chaussée d'un salon, d'une salle à manger avec un coin cuisine, une salle d'eau et WC séparé et à l'étage trois chambres et un grenier. Garage et dépendances complètent l'ensemble. Édifiée sur un terrain clos d'environ 1 100 m2, la propriété permet le détachement d'une parcelle constructible d'environ 900 m2 (certificat d'urbanisme positif). Maison reliée au tout à l'égoût, service d'eau et Puits. Idéal projet de rénovation ou d'investissement. A visiter sans tarder!
Legé est une commune de 4 700 habitants, dynamique et solidaire. Vous y trouverez les écoles élémentaires, primaires et collèges ainsi que diverses associations sportives, les commerces de proximité avec un centre commercial, les services de santé, un cinéma, une bibliothèque, une piscine, un parc public et un plan d'eau avec aire de pique-nique, parcours de randonnées, pêche,...- Situé à 40 minutes des plages et de Nantes, à 20 minutes de Challans et 25 minutes de la Roche sur Yon. Honoraires 4,80% de 130 000EUR (prix de vente honoraires exclus). Soit 136 240EUR honoraires inclus. Honoraires à la charge de l'acquéreur. Ref:25659. Votre agent indépendant Noovimo. Nos honoraires sont consultables sur www.noovimo.fr. Les informations sur les risques auxquels ce bien est exposé, sont disponibles sur le site Géorisques: http://www.georisques.gouv.fr - Annonce rédigée et publiée par un Agent Mandataire indépendant inscrit au RSAC sous le no843444357 1 - Annonce rédigée et publiée par un Agent Mandataire -
Partager le contenu sur mes réseaux :
Me contacter
Voir le téléphone
Loading...
Les informations recueillies sur ce formulaire sont enregistrées dans un fichier informatisé par Stéphanie FORTIN pour gérer votre demande de contact. Elles sont conservées pour la durée nécessaire à la gestion de la relation client dans le respect des prescriptions légales applicables et sont destinées au responsable de la publication de ce site : Stéphanie FORTIN.
Conformément à la loi « informatique et libertés », vous pouvez exercer votre droit d'accès aux données vous concernant et les faire rectifier en contactant Stéphanie FORTIN sfortin@noovimo.fr ou en utilisant ce formulaire. Nous vous informons de l’existence de la liste d'opposition au démarchage téléphonique « Bloctel », sur laquelle vous pouvez vous inscrire ici : https://www.bloctel.gouv.fr/
Vous ne trouvez pas votre bonheur ? Votre projet d'achat
Bilan énergétique
DPE_ logement extrêmement performant logement extrêmement peu performant consommation (énergie primaire) 352 kWh/m²/an émissions* 111 kgCO2/m²/an
DPE_ * Dont émissions de gaz à effet de serre peu d'émissions de CO2 émissions de CO2 très importantes 111 kgCO2/m²/an
Noovimo, société au capital de 10000.00 euros. Siège social : 29 Romain Rolland 44100 Nantes. N° de TVA intracommunautaire : FR75793556051. RCS NANTES immatriculé(e) 793556051.
Le titulaire de(s) carte(s) professionnelle(s) est Noovimo, société au capital de 10000.00 euros dont le siège social est situé au 29 Romain Rolland - 44100 Nantes et immatriculée au RCS Nantes - Siret : 79355605100027.

Carte T : 44012018000028735. Date de délivrance : NC. Lieu de délivrance : CCI DE NANTES. Caisse de garantie financière : AXA ASSURANCE. N° de caisse de garantie : NC. Adresse de la caisse de garantie : NC. Montant de la garantie financière : 110000 euros.
Conformément aux articles L611-1 et suivants et R612-1 et suivants du Code de la consommation, le consommateur est informé qu’il a la possibilité de saisir un ou notre médiateur de la consommation, à savoir MEDIATION – VIVONS MIEUX ENSEMBLE situé 465 avenue de la Libération 54000 NANCY - email : mediation@vivons-mieux-ensemble.fr - site : www.mediation-vivons-mieux-ensemble.fr
Barème d'honoraires